推薦產品
河南華東起重機械設備公司
服務熱線:400 086 9590
公司:河南華東起重機械設備有限公司
聯系人:賈經理
聯系電話:13903802779
地址:河南新鄉市封丘縣起重機工業園區
當前位置: 起重機 > 技術資料 > 起重機百科
HYD型液壓緩沖器HYD系列液壓阻尼器HYD型緩沖阻尼器
時間:2024-01-20來源:起重機阻尼器廠家瀏覽次數:1
緩沖器介紹
HYD型液壓緩沖器,產品適用于電動橋式/門式起重機(天車、吊機、行車、龍門吊)或者其它設備在運行過程中或運行終端防止碰撞的緩沖裝置,屬于安全保護裝置,以減小設備相撞帶來的危險或損壞。
緩沖器說明
產品名稱:HYD型液壓緩沖器
別名別稱:防撞緩沖/碰頭
型號規格:HYD型
所屬類別:起重安全保護裝置
產品產地:河南新鄉
是否定制:是
是否現貨:部分現貨
生產周期:5~10天
供貨范圍:全國
送達方式:自提或物流托運
是否安裝:安裝另議
售后方式:一年報修
發貨地區:河南長垣
緩沖器圖片

緩沖器參數
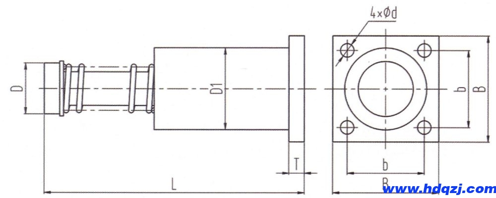
| HYD型液壓緩沖器圖片 | HYD型液壓緩沖器外形尺寸圖 |
![]() | ![]() |
HYD型液壓緩沖器技術參數對照表
| HYD型緩沖器參數對照表 | |||||||||||
| 序號 | 型號 | D1 mm | D mm | L mm | b mm | B mm | T mm | d mm | 緩沖容量 Kn.m | 緩沖行程 mm | 緩沖力 Kn |
| 1 | HYD2-50 | 83 | 53 | 270 | 80 | 110 | 14 | 4-14 | 2 | 50 | 40 |
| 2 | HYD2-60 | 127 | 66 | 280 | 125 | 160 | 16 | 4-14 | 2.5 | 60 | 45 |
| 3 | HYD4-50 | 95 | 66 | 280 | 100 | 130 | 16 | 4-18 | 4 | 50 | 80 |
| 4 | HYD4-90 | 127 | 66 | 355 | 125 | 160 | 16 | 4-14 | 4 | 90 | 45 |
| 5 | HYD6-80 | 159 | 80 | 360 | 155 | 200 | 16 | 4-18 | 5.6 | 80 | 70 |
| 6 | HYD7-100 | 108 | 66 | 410 | 100 | 130 | 16 | 4-18 | 7 | 100 | 70 |
| 7 | HYD8-110 | 159 | 80 | 440 | 155 | 200 | 16 | 4-18 | 8 | 110 | 75 |
| 8 | HYD10-70 | 133 | 80 | 367 | 130 | 170 | 20 | 4-21 | 10 | 70 | 140 |
| 9 | HYD10-200 | 140 | 110 | 710 | 170 | 220 | 20 | 4-21 | 10 | 200 | 50 |
| 10 | HYD12-90 | 203 | 120 | 430 | 195 | 250 | 20 | 4-21 | 12.5 | 90 | 140 |
| 11 | HYD14-80 | 180 | 125 | 360 | 170 | 220 | 20 | 4-26 | 14 | 80 | 175 |
| 12 | HYD14-120 | 133 | 80 | 537 | 130 | 170 | 20 | 4-25 | 14 | 120 | 120 |
| 13 | HYD17-100 | 168 | 100 | 515 | 170 | 220 | 20 | 4-25 | 17 | 100 | 170 |
| 14 | HYD18-60 | 133 | 80 | 440 | 125 | 170 | 20 | 4-25 | 18 | 60 | 300 |
| 15 | HYD18-120 | 203 | 100 | 520 | 195 | 250 | 20 | 4-25 | 18 | 120 | 150 |
| 16 | HYD20-250 | 168 | 125 | 856 | 200 | 260 | 25 | 4-28 | 20 | 250 | 80 |
| 17 | HYD25-130 | 245 | 125 | 580 | 230 | 285 | 25 | 4-25 | 25 | 130 | 200 |
| 18 | HYD26-80 | 180 | 125 | 400 | 170 | 220 | 25 | 4-25 | 26 | 80 | 325 |
| 19 | HYD26-100 | 180 | 125 | 520 | 170 | 220 | 25 | 4-28 | 26 | 100 | 260 |
| 20 | HYD30-150 | 179 | 125 | 675 | 170 | 220 | 25 | 4-28 | 30 | 150 | 200 |
| 21 | HYD40-100 | 194 | 120 | 510 | 190 | 250 | 25 | 4-28 | 40 | 100 | 400 |
| 22 | HYD40-180 | 245 | 125 | 720 | 230 | 285 | 25 | 4-28 | 40 | 180 | 230 |
| 23 | HYD40-350 | 245 | 150 | 1105 | 250 | 310 | 25 | 4-32 | 40 | 350 | 110 |
| 24 | HYD50-150 | 203 | 120 | 680 | 190 | 250 | 25 | 4-28 | 50 | 150 | 330 |
| 25 | HYD50-250 | 203 | 150 | 895 | 190 | 250 | 25 | 4-32 | 50 | 250 | 200 |
| 26 | HYD56-200 | 299 | 170 | 760 | 280 | 360 | 25 | 4-32 | 56 | 200 | 280 |
| 27 | HYD60-300 | 245 | 175 | 910 | 250 | 300 | 25 | 4-32 | 60 | 300 | 200 |
| 28 | HYD70-100 | 273 | 160 | 561 | 250 | 310 | 25 | 4-38 | 70 | 100 | 700 |
| 29 | HYD70-150 | 203 | 120 | 610 | 190 | 250 | 25 | 4-28 | 70 | 150 | 465 |
| 30 | HYD70-200 | 245 | 132 | 680 | 250 | 320 | 25 | 4-32 | 70 | 200 | 350 |
| 31 | HYD70-425 | 245 | 175 | 1332 | 280 | 360 | 25 | 4-38 | 70 | 425 | 162 |
| 32 | HYD80-250 | 219 | 160 | 810 | 250 | 310 | 25 | 4-32 | 80 | 250 | 320 |
| 33 | HYD80-270 | 299 | 170 | 945 | 280 | 360 | 25 | 4-32 | 80 | 270 | 300 |
| 34 | HYD100-200 | 273 | 160 | 800 | 250 | 310 | 25 | 4-32 | 100 | 200 | 500 |
| 35 | HYD100-250 | 245 | 160 | 810 | 250 | 320 | 25 | 4-32 | 100 | 250 | 400 |
| 36 | HYD120-300 | 273 | 160 | 972 | 250 | 310 | 25 | 4-32 | 120 | 300 | 400 |
| 37 | HYD125-220 | 351 | 205 | 880 | 350 | 430 | 25 | 4-38 | 125 | 220 | 570 |
| 38 | HYD125-250 | 273 | 160 | 916 | 250 | 310 | 25 | 4-38 | 125 | 250 | 500 |
| 39 | HYD140-150 | 273 | 160 | 650 | 300 | 375 | 25 | 4-38 | 140 | 150 | 930 |
| 40 | HYD140-250 | 273 | 160 | 835 | 250 | 320 | 25 | 4-32 | 140 | 250 | 560 |
| 41 | HYD150-250 | 299 | 230 | 920 | 300 | 375 | 25 | 4-38 | 150 | 250 | 600 |
| 42 | HYD170-250 | 273 | 160 | 835 | 300 | 400 | 25 | 4-34 | 170 | 250 | 680 |
| 43 | HYD180-320 | 351 | 205 | 1140 | 350 | 430 | 30 | 4-38 | 180 | 320 | 570 |
| 44 | HYD200-250 | 299 | 230 | 920 | 300 | 375 | 30 | 4-38 | 200 | 250 | 800 |
| 45 | HYD200-350 | 273 | 180 | 1160 | 300 | 375 | 30 | 4-38 | 200 | 350 | 570 |
| 46 | HYD250-250 | 299 | 230 | 1020 | 345 | 435 | 30 | 4-40 | 250 | 250 | 1000 |
| 47 | HYD250-270 | 480 | 248 | 1080 | 450 | 560 | 30 | 4-44 | 250 | 270 | 950 |
| 48 | HYD320-400 | 325 | 230 | 1230 | 345 | 435 | 30 | 4-44 | 320 | 400 | 800 |
| 49 | HYD320-420 | 325 | 230 | 1295 | 345 | 435 | 30 | 4-44 | 320 | 420 | 762 |
| 50 | HYD355-350 | 480 | 248 | 1345 | 450 | 560 | 30 | 4-44 | 355 | 350 | 1020 |
緩沖器廠家
HYD型液壓緩沖器生產廠家還為用戶提供聚氨酯緩沖器、液氣緩沖器、彈性阻尼緩沖器、雙向液壓緩沖器、彈簧緩沖器、電梯緩沖器、澆筑膠彈性體緩沖器、復合型緩沖器、橡膠緩沖器、單梁起重機/電動葫蘆碰頭等緩沖器產品的設計制造(定制配套)和半成品配件批發零售、安裝修理維修等服務,更多國標/非標/專用/新型緩沖器廠家品牌、型號規格、材質、技術參數、安裝尺寸圖紙、使用說明、批發價格請咨詢客服。
-
20
2024-01
HYG型液壓緩沖器HYG系列液壓阻尼器HYG型緩沖阻尼器
緩沖器介紹 HYG型液壓緩沖器適用于電動單雙梁橋式/門式起重機(天車、吊機、行車、龍門吊)或者其它設備在運行過程中或運行終端防止碰撞的緩沖裝置,屬于安全保護裝置,以減小設備相撞帶來的危險或損壞。緩沖器說明產品名稱:HYG型液壓緩沖器別名別稱:防撞緩沖/碰頭型號規格:HYG型所屬類別:起重安全保護裝置產品產地:河南新鄉是否定制:是是否現貨:部分現貨生產周期:5~10天供貨范圍:全國送達方...詳細
-
20
2024-01
HYD型液壓緩沖器HYD系列液壓阻尼器HYD型緩沖阻尼器
緩沖器介紹 HYD型液壓緩沖器,產品適用于電動橋式/門式起重機(天車、吊機、行車、龍門吊)或者其它設備在運行過程中或運行終端防止碰撞的緩沖裝置,屬于安全保護裝置,以減小設備相撞帶來的危險或損壞。緩沖器說明產品名稱:HYD型液壓緩沖器別名別稱:防撞緩沖/碰頭型號規格:HYD型所屬類別:起重安全保護裝置產品產地:河南新鄉是否定制:是是否現貨:部分現貨生產周期:5~10天供貨范圍:全國送達方...詳細
-
09
2021-11
起重機防撞液壓阻尼器|阻尼緩沖器|彈簧緩沖阻尼器
起重機防撞液壓阻尼器,龍門吊阻尼緩沖器,門式起重機彈簧緩沖阻尼器,液壓阻尼緩沖器依靠液壓阻尼對作用在其上的物體進行緩沖減速至停止,起到一定程度的保護作用。其作用是...詳細






















