Product Series
推薦產品
河南華東起重機械設備公司
服務熱線:400 086 9590
公司:河南華東起重機械設備有限公司
聯系人:賈經理
聯系電話:13903802779
地址:河南新鄉市封丘縣起重機工業園區
當前位置: 起重機 > 起重機文章
旋轉電磁掛梁橋式起重機技術參數
時間:2024-05-25來源:起重機廠家瀏覽次數:1
旋轉電磁掛梁橋式起重機產品介紹:
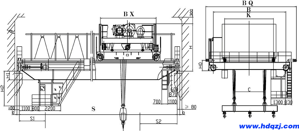
QX型旋轉電磁掛梁橋式起重機有可旋轉掛梁,適用于鋼廠、堆場和倉儲等室內或露天的固定跨間,裝卸及搬運鋼板、型鋼、盤卷等物料。特別適用于吊運不同規格且需水平旋轉的場合。掛梁下可以攜帶電磁吸盤、夾鉗等專用吊具。
可伸縮掛梁能夠根據所吊物料的規格(不同厚度、長度、張數等)和重量,電動調整電磁鐵間距及無級調節電磁鐵磁力。根據用戶要求可提供:各機構的調速(1:10或g大)、超載及報警、遙控、PLC控制及故障檢測、顯示、記錄和打印系統等。
2、起重量包含掛梁及專用吊具自重;
3、掛梁z大旋轉角度可按用戶要求;
4、以上所有數據為室內使用時;
5、參數表中起重機總功率為行車本體功率,不含專用吊具功率。
上旋轉電磁掛梁橋式起重機結構圖:


上旋轉電磁掛梁橋式起重機參數表:

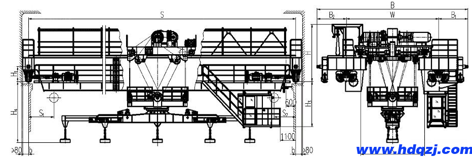
下旋轉電磁掛梁橋式起重機參數表

上一篇:20噸單梁起重機外形尺寸參數表
下一篇:QS型三用橋式起重機技術參數
推薦文章:




















