Product Series
推薦產品
河南華東起重機械設備公司
服務熱線:400 086 9590
公司:河南華東起重機械設備有限公司
聯系人:賈經理
聯系電話:13903802779
地址:河南新鄉市封丘縣起重機工業園區
當前位置: 起重機 > 起重機文章
QE型雙梁橋式起重機技術參數
時間:2024-05-25來源:起重機廠家瀏覽次數:1
雙小車雙梁起重機產品介紹:
QE型雙梁雙小車吊鉤橋式起重機主要由橋架、大車運行機構、小車、電器設備等組成。本起重機有兩臺小車,兩小車可以同時使用,也可以單獨使用。使用吊鉤作為起升吊具。司機室平臺入口方向分側面入口,端面入口和頂面入口三種。大車導電安全滑觸線、角鋼滑線三種方式,應在司機室對側。
QE型橋式起重機根據利用等級和載荷狀態不同,分為A5、A6兩種工作級別。
QE型雙梁雙小車吊鉤橋式起重機特點:
A.主梁采用數控開割上拱度預拱曲線,主要角焊縫采用埋弧焊焊接。
B.小車導電裝置采用一整條(無分段)的"C型槽+滑車"懸掛電纜。
C.大小車運行采用"軟啟動"電機。
D.小車自主開發設計,采用自動調節車輪高低,無"三腳貓" 現象。
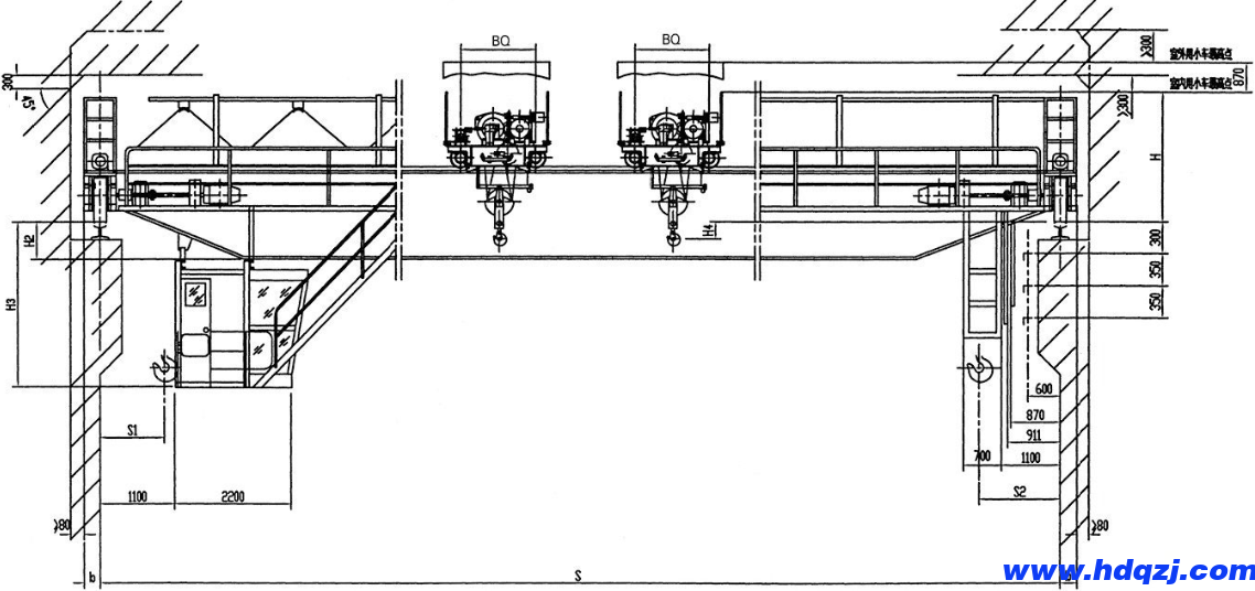
雙小車吊鉤橋式起重機結構簡圖:


QE型雙梁橋式起重機參數表























