Product Series
推薦產品
河南華東起重機械設備公司
服務熱線:400 086 9590
公司:河南華東起重機械設備有限公司
聯系人:賈經理
聯系電話:13903802779
地址:河南新鄉市封丘縣起重機工業園區
當前位置: 起重機 > 起重機文章
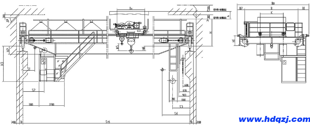
QB型防爆橋式起重機技術參數
時間:2024-05-24來源:起重機廠家瀏覽次數:1
上一篇:QC型電磁橋式起重機技術參數
下一篇:QDY型冶金雙梁起重機技術參數
推薦文章:























