Product Series
推薦產品
河南華東起重機械設備公司
服務熱線:400 086 9590
公司:河南華東起重機械設備有限公司
聯系人:賈經理
聯系電話:13903802779
地址:河南新鄉市封丘縣起重機工業園區
當前位置: 起重機 > 起重機文章
LX型電動單梁懸掛起重機|LDP型電動單梁起重機
時間:2024-05-15來源:起重機廠家瀏覽次數:1
LX型電動單梁懸掛起重機
產品簡介
LX型電動單梁懸掛起重機是按標準JB/T2603-1994設計制造的與CD、MD等型式的電動葫蘆配套使用,成為*種有軌運行的輕小型起重機,其適用起重量為0.5~5t,適用跨度為3~16m,工作環境溫度為-30℃~40℃范圍內。
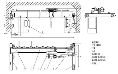
本產品為*般用途起重機,多用于機械制造裝配、倉庫、山洞等場所。起重機主要由橋架(金屬結構)、電動葫蘆、運行結構、電氣設備等四部分組成。
LX型電動單梁懸掛起重機方案圖

LX型電動單梁懸掛起重機參數表
起重量Q(t) | 0.5;1;2;3;5 | ||
跨度LK(m) | 3~16 | ||
起重機運行機構 | 運行速度V(m/min) | 20 | 30 |
減速比i | 28.2 | 20 | |
電動機 | ZDY12-4 N=2×0.4KW m=1380r/min | ||
電動葫蘆 | 型式 | CD或MD | |
起升速度V1(m/min) | 8或8/0.8 | ||
起升高度H(m) | 6、9、12、18、24、30 | ||
運行速度V2(m/min) | 20、30 | ||
電動機 | 錐形鼠籠型 | ||
工作級別 | 中級(JC=25%) | ||
電源 | 3相 50HZ 380V | ||
車輪工作直徑(mm) | Φ130 | ||
軌道工字鋼(GB706-65) | 120a~145c | ||
LDP型電動單梁起重機
LDP型電動單梁起重機屬于超低凈空輕小型起重機,電動葫蘆位于主梁*側,增加了吊鉤的服務空間,可以降低廠房高度和造價。該產品因具有小車輪距大、運行平穩、結構緊湊、剛性好、操作靈敏、噪音低、安全可靠、造型美觀等優點,廣泛應用于工作環境在-25℃~40℃,車間廠房凈空高度又較低的場所。
性能參數performance Parameter
LDP型電動單梁起重機是按GB/T 3811-2008、JB/T1306-2008標準設計制造的,與CD1、MD1電動葫蘆配套使用的輕型起重設備。其額定載荷3t~10t,跨度7.5m~22.5m,工作級別A4,起升高度6~12m,操作方式主要是地面操縱方式(地操、遙控操作、地+遙操作)。如果有跨度和起升高度超出樣本中所列的范圍,我們還可以根據用戶需求進行非標設計。
LDP型電動單梁起重機方案圖





















