Product Series
推薦產品
河南華東起重機械設備公司
服務熱線:400 086 9590
公司:河南華東起重機械設備有限公司
聯系人:賈經理
聯系電話:13903802779
地址:河南新鄉市封丘縣起重機工業園區
當前位置: 起重機 > 起重機文章
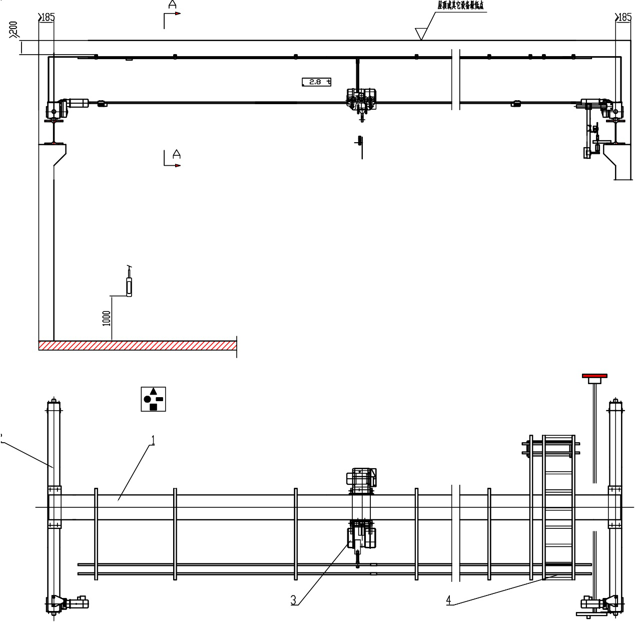
LD型歐式電動單梁橋式起重機
時間:2024-04-22來源:起重機廠家瀏覽次數:1
LD型歐式電動單梁起重機產品:

1、優化設計,性能環好,結構緊湊,自重輕,安全可靠和運行高效;相比同類產品,起升高度更高,并且吊鉤至墻面的兩側極限距離更小,可有效的增加工作面積。
2、運行平穩,定位快捷使用變頻驅動,使用戶在起升或運行過程中能夠準確定位負載,減少提升物的搖擺,增加操作過程中的安全性和舒適性。
3、采用性能優良的歐式電動葫蘆主機,可大大提高設備性能和生產率,同時也增加了安全性。
4、超可靠性和安全性能的具有接電持續率的電機,高性能的制動器安全使用壽命超過萬次。制動器為自動磨損調節,延長了葫蘆的使用壽命。
5、大直徑卷筒,延長壽命,減小偏角鋼絲繩電動葫蘆大直徑卷筒的設計成倍的延長了鋼絲繩的壽命,提高在工作中的安全性。同時大直徑卷筒使葫蘆的起升減小偏角,達到垂直起升,吊鉤定位準確,使用方便。
6、人性化設計鋼絲繩電動葫蘆從性能和使用角度出發充分考慮客戶的需求,例客戶在使用過程中增加安全性和舒適性。
產品特點:技術先進 、綠色節能、時實安全監控、變頻調速、運行平穩、故障率低、易于維護。
LD歐式電動單梁起重機工作環境:
LD型歐式單梁起重機工作環境溫度為-25-40℃。廣泛用于倉儲物流、精密加工、金屬制造、風電、汽車制造、預制構件、工程機械等領域。如需特殊環境操作使用可聯系我們非標電動單梁起重機設計定做定制。
LD型歐式單梁起重機操作方式:
地面手電門或無線遙控器操作,方便快捷。
LD型歐式電動單梁橋式起重機結構圖紙:

歐式電動葫蘆主機:


歐式驅動馬達:





















