Product Series
推薦產品
河南華東起重機械設備公司
服務熱線:400 086 9590
公司:河南華東起重機械設備有限公司
聯系人:賈經理
聯系電話:13903802779
地址:河南新鄉市封丘縣起重機工業園區
當前位置: 起重機 > 起重機文章
QD型20/5噸電動雙梁橋式起重機技術參數表
時間:2024-04-15來源:起重機廠家瀏覽次數:1
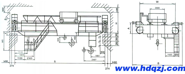
QD型20/5噸電動雙梁橋式起重機方案圖

QD型20/5噸電動雙梁橋式起重機技術規格參數:
| 工作級別 | A5 | A6 | |||||||||||||||||||||
| 跨度 | m | 10.5 | 13.5 | 16.5 | 19.5 | 22.5 | 25.5 | 28.5 | 31.5 | 10.5 | 13.5 | 16.5 | 19.5 | 22.5 | 25.5 | 28.5 | 31.5 | ||||||
| 超重機總量 | t | 20 | 22.2 | 24.7 | 27.4 | 30.3 | 34.2 | 38 | 41.3 | 20.9 | 23.2 | 25.8 | 29.5 | 32.1 | 36.5 | 40.3 | 43.8 | ||||||
| 輪壓 | KN | 160 | 171 | 182 | 192 | 201 | 211 | 221 | 231 | 166 | 177 | 188 | 198 | 208 | 218 | 229 | 239 | ||||||
| 起升高度 | m | 12/14 | 12/14 | ||||||||||||||||||||
| 速度 | 起重機運行 | m/min | 75 | 86.5 | 87 | ||||||||||||||||||
| 小車運行 | 44.2 | 44.2 | |||||||||||||||||||||
| 主起升 | 9.2 | 12.4 | |||||||||||||||||||||
| 副起升 | 18.7 | 18.7 | |||||||||||||||||||||
| 電動機 | 起升 | 主 | 型號 | YZR250M1-8/35 | YZR250Mz-6/45 | ||||||||||||||||||
副 | YZR180L-6/17 | YZR180L-6/17 | |||||||||||||||||||||
| 小車運行 | YZR132M2-6/4 | YZR132M2-6/4 | |||||||||||||||||||||
| 大車運行 | YZR160M2-6/2x8.5 | YZR160M2-6/2x7.5 | YZR160M2-6/2x11 | ||||||||||||||||||||
| 主要尺寸 | B | mm | 5860 | 6260 | 5860 | 6260 | |||||||||||||||||
W | 4200 | 4600 | 4200 | 4600 | |||||||||||||||||||
H | 2060 | 2063 | 2066 | 2069 | 2072 | 2075 | 2078 | 2081 | 2060 | 2063 | 2066 | 2069 | 2072 | 2075 | 2078 | 2081 | |||||||
A | 845 | 845 | |||||||||||||||||||||
H3 | 501 | 501 | |||||||||||||||||||||
F | 30 | 150 | 280 | 430 | 580 | 730 | 830 | 980 | 30 | 150 | 280 | 430 | 580 | 730 | 830 | 980 | |||||||
| 薦用軌道 | 43kg/m 50kg/m QU70 QU100 QU120 | ||||||||||||||||||||||




















