Product Series
推薦產品
河南華東起重機械設備公司
服務熱線:400 086 9590
公司:河南華東起重機械設備有限公司
聯系人:賈經理
聯系電話:13903802779
地址:河南新鄉市封丘縣起重機工業園區
當前位置: 起重機 > 起重機文章
YWZ(13)型電力液壓鼓式制動器YWZ13型電力液壓鼓式剎車抱閘
時間:2024-01-23來源:起重機制動器廠家瀏覽次數:1
制動器產品介紹
YWZ13電力液壓鼓式制動器型號規格有:YWZ13-200/E23、YWZ13-200/E30、YWZ13-300/E30、YWZ13-300/E50、YWZ13-300/E80、YWZ13-400/E50、YWZ13-400/E80、YWZ13-400/E121、YWZ13-500/E80、YWZ13-500/E121、YWZ13-500/E201、YWZ13-600/E121、YWZ13-600/E201、YWZ13-600/E301、YWZ13-700/E201、YWZ13-710/E301、YWZ13-800/E301型等,鼓式制動器廣泛用于起重機械、運輸、冶金、港口、碼頭、建筑機械等機械驅動裝置的減速或制動。根據用戶要求,可生產各種常開、防爆及非標制動器產品。
制動器產品說明
產品名稱:YWZ(13)型電力液壓鼓式制動器
別名別稱:抱閘/制動剎車
型號規格:YWZ(13)型
所屬類別:液壓鼓式制動器
產品產地:河南新鄉長垣/焦作武陟
非標定制:可定制
是否現貨:部分現貨
生產周期:10~15天
包裝形式:無
供貨范圍:全國
送達方式:自提或快遞托運
是否安裝:安裝另計
售后方式:一年保修
制動器產品圖冊


制動器相關參數
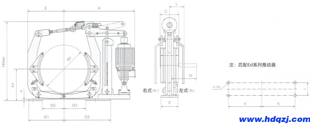
YWZ13電力液壓鼓式制動器外形尺寸圖

YWZ13電力液壓鼓式制動器技術參數與主要尺寸表
| 制動器型號 | 匹配推動器 | 制動力矩(N.m) | 退距 | A | b | C | D | d | E | F | G1 | G2 | H max | h1 | i | K | M | n | L | G3 | 重量 (kg) |
| YWZ13-200/E23 | Ed23/5 | 100-200 | 0.7 | 470 | 90 | 160 | 200 | 17 | 175 | 100 | 215 | 265 | 510 | 170 | 60 | 175 (190) | 140 | 8 | 150 | 75 | 32 |
| YWZ13-200/E30 | Ed30/5 | 140-315 | 43 | ||||||||||||||||||
| YWZ13-300/E30 | Ed30/5 | 250-400 | 0.8 | 590 | 140 | 160 | 300 | 22 | 255 | 130 | 295 | 330 | 605 | 240 | 80 | 250(270) | 180 | 12 | 170 | 135 | 65 |
| YWZ13-300/E50 | Ed50/6 | 400-630 | 630 | 195 | 80 | ||||||||||||||||
| YWZ13-300/E80 | Ed30/6 | 630-1000 | 92 | ||||||||||||||||||
| YWZ13-400/E50 | Ed50/6 | 400-800 | 1.2 | 710 | 180 | 195 | 400 | 22 | 310 | 180 | 350 | 420 | 755 | 320 | 130 | 325 | 220 | 14 | 170 | 150 | 120 |
| YWZ13-400/E80 | Ed80/6 | 630-1250 | 130 | ||||||||||||||||||
| YWZ13-400/E121 | Ed121/6 | 1000-2000 | 700 | 240 | 820 | 150 | |||||||||||||||
| YWZ13-500/E80 | Ed80/6 | 800-1600 | 1.2 | 810 | 200 | 240 | 500 | 22 | 380 | 200 | 405 | 535 | 880 | 400 | 150 | 380 | 280 | 16 | 180 | 205 | 220 |
| YWZ13-500/E121 | Ed121/6 | 1250-2500 | 800 | 900 | |||||||||||||||||
| YWZ13-500/E201 | Ed201/6 | 2000-4000 | 900 | ||||||||||||||||||
| YWZ13-600/E121 | Ed121/6 | 1800-2800 | 1.3 | 925 | 240 | 240 | 600 | 26 | 470 | 220 | 500 | 600 | 1080 | 475 | 170 | 475 | 340 | 20 | 185 | 240 | 305 |
| YWZ13-600/E201 | Ed201/6 | 2500-4500 | |||||||||||||||||||
| YWZ13-600/E301 | Ed301/6 | 4000-6500 | |||||||||||||||||||
| YWZ13-700/E201 | Ed201/6 | 2500-5600 | 1.3 | 980 | 280 | 240 | 700 | 34 | 530 | 270 | 570 | 650 | 1290 | 550 | 200 | 540 | 380 | 25 | 220 | 300 | 425 |
| YWZ13-700/E301 | Ed301/6 | 4000-8000 | |||||||||||||||||||
| YWZ13-800/E301 | Ed301/12 | 12500 | 2.0 | 1230 | 320 | 240 | 800 | 34 | 600 | 310 | 670 | 830 | 1430 | 600 | 240 | 620 | 420 | 34 | 240 | 310 | 545 |
制動器符合標注
YWZ13電力液壓鼓式制動器安裝尺寸和制動力矩參數符合JB/ZQ4388-2006標準,技術條件符合JB/T6406-2006標準;
可增設附加功能(見下表制動器附加功能)。
| 制動器附件功能表 | |
| 附加功能代號 | 附加功能 |
| M | 襯墊磨損自動補償裝置 |
| K1 | 開閘(上升)顯示行程開關 |
| K2 | 閉閘(下降)顯示行程開關 |
| K3 | 襯墊磨損極限顯示行程開關 |
| S1 | 左式手動裝置 |
| S2 | 右式手動裝置 |
制動器主要特點:
性能安全可靠、制動平穩,動作頻率高。
使用條件:
環境溫度-20℃~50℃;
周圍工作環境中不得有易燃、易爆及腐蝕性氣體,否則應采用防腐型產品;
空氣相對濕度不大于90%;
使用地點的海拔高度符合GB755-2008。
YWZ13電力液壓鼓式制動器生產廠家還為用戶提供YWZB、YWZ3B、YWZ8、YWZ9(YWZ5)、YWZ4B、YW、YW-L、YW-E、TWZ(B)、TYWZ2、JZ、MW(Z)、ZWZA、ZWZ2、ZWZ3鼓式制動器,廠用防爆、廠用BZES隔爆封閉式制動器、礦用DYW防爆制動器,YPZ2ⅠⅡⅢ、YPZ2ⅣⅤⅥ、DAZ、SE/SH、SB/SBD、YZ、DCPZ、BNM、QP12.7等盤式制動器,YLBZ(液壓輪邊制動器)、YFX(電力液壓防風鐵楔制動器)、YJGQ(液壓夾軌器)等防風制動器,ED1YT1系列電力液壓推動器、ZED交流直流兩用電力液壓推動器、BYT1BEd系列隔爆式電力液壓推動器、EDX系列電力液壓推動器等驅動裝置(液壓罐、制動器電機)、制動瓦塊、制動器架子等成套零部件及相關產品的設計制造(定制)和配件批發零售、安裝修理維修等服務,更多國標/非標/專用工業制動器廠家品牌、技術參數、安裝尺寸圖紙、價格請咨詢客服。
-
23
2024-01
EYWZ系列電力液壓鼓式制動器EYWZ電力液壓鼓式剎車抱閘
制動器產品介紹 EYWZ系列電力液壓鼓式制動器型號規格有:EYWZ-200/E23、EYWZ-200/E50、EYWZ-250/E50、EYWZ-315/E50、EYWZ-315/E80等。主要用于起重機大車行走機構的制動和皮帶運輸機的工作制動,該系列制動器為兩級制動式制動 裝置,第二級的制動時間可通過單向調速閥進行調整,制動平穩,安全可靠。制動器產品說明產品名稱:電力液壓鼓式制動器別...詳細
-
23
2024-01
YWP系列電力液壓鼓式制動器YWP電力液壓鼓式剎車抱閘
制動器產品介紹 YWP系列電力液壓鼓式制動器型號規格有:YWP160-220、YWP200-220、YWP200-300、YWP250-220、YWP250-300、YWP250-500、YWP315-300、YWP315-500、YWP315-800、YWP400-500、YWP400-800、YWP400-1250、YWP500-800、YWP500-1250、YWP500-200...詳細
-
23
2024-01
YWZ(12)系列電力液壓鼓式制動器YWZ(12)電力液壓鼓式剎車抱閘
制動器產品介紹 YWZ12系列電力液壓鼓式制動器型號規格有:YWZ12-200/23S、YWZ12-200/30S、YWZ12-250/23S、YWZ12-250/30S、YWZ12-250/50S、YWZ12-315/30S、YWZ12-315/50S、YWZ12-315/80S、YWZ12-400/50S、YWZ12-400/80S、YWZ12-400/121S、YWZ12-500...詳細
-
23
2024-01
YWZ(10)系列電力液壓鼓式制動器YWZ(10)電力液壓鼓式剎車抱閘
制動器產品介紹 YWZ10系列電力液壓鼓式制動器型號規格有:YWZ10-200/E23、YWZ10-200/E30、YWZ10-250/E23、YWZ10-250/E30、YWZ10-250/E50、YWZ10-315/E30、YWZ10-315/E50、YWZ10-315/E80、YWZ10-400/E50、YWZ10-400/E80、YWZ10-400/E121、YWZ10-500...詳細
-
23
2024-01
YW-E二級電力液壓鼓式制動器YW-E型電力液壓鼓式剎車抱閘
制動器產品介紹 YW-E二級電力液壓鼓式制動器型號規格有:YW-E200/E23、YW-E200/E30、YW-E200/E50、YW-E250/E50、YW-E315-E50、YW-E315-E80、YW-E400-E80型等,鼓式制動器廣泛用于起重機械、運輸、冶金、港口、碼頭、建筑機械等機械驅動裝置的減速或制動。根據用戶要求,可生產各種常開、防爆及非標制動器產品。 制...詳細
-
23
2024-01
YW-L型電力液壓鼓式制動器YW-L型電力液壓鼓式剎車抱閘
制動器產品介紹 YW-L型電力液壓鼓式制動器型號規格有:YW-L-200/E23、YW-L-200/E30、YW-L-250/E23、YW-L-250-E30、YW-L-250-E50、YW-L-315-E23、YW-L-315-E30、YW-L-315-E50、YW-L-315-E80、YW-L-400-E30、YW-L-400-E50、YW-L-400-E80、YW-L-400-E...詳細




















